Red Cross Med Center

Image
Red Cross Med Center

Innowacyjna sieć centrów medycznych na terenie Ukrainy

Video file

MISJA

W obliczu agresji Rosji na Ukrainę i trwającej na jej terenie wojny, gwałtownie rośnie odsetek ludzi dotkniętych jej skutkami. To ofiary działań wojennych: żołnierze ale i ludność cywilna, w tym kobiety i dzieci. Dotknięte kalectwem, traumą, depresją, wymagają natychmiastowej pomocy. Projekt RED CROSS MED CENTER jest inicjatywą społeczności międzynarodowej w duchu solidarności z narodem Ukraińskim. Projekt RED CROSS MED CENTER, poza aspektem humanitarnym ma też wymiar symboliczny: ma być konkretnym dowodem wsparcia wolnego świata dla Ukrainy już teraz, mimo wojny.

CEL

Celem projektu RED CROSS MED CENTER jest budowa infrastruktury medycznej na terenie Ukrainy dedykowanych diagnostyce i rehabilitacji. Projekt łączy inicjatywy środowisk twórczych: przemysłu kreatywnego, naukowego, akademickiego i biznesu. Projekt został zainicjowany przez fundację AYA Found we współpracy z Narodowym Związkiem Architektów Ukrainy, w styczniu 2023 na Forum 4 Designe Day w Katowicach. Inicjatywa RED CROSS MED CENTER ma też cel nadrzędny: odbudowę Ukrainy poprzedzać ma odbudowa kondycji ofiar działań wojennych. To nasz moralny obowiązek i realne wsparcie.

ZESPÓŁ

Autorem koncepcji jest art. proj. Aleksander Janicki, autor licznych nagrodzonych w Polsce i na świecie obiektów architektonicznych (m. innymi Pawilonu Polskiego na Expo 2005 w Aichi w Japonii, Muzeum Dom Mikołaja Kopernika w Toruniu (wyróżniony nagrodą EMYA 2022 European Museum of the Year Award) Pawilonu J. Czapskiego oddziału Muzeum Narodowego w Krakowie, Centrum Promocji i Informacji na Zamku Królewskim na Wawelu, Teatru KTO w Krakowie, licznych wystaw i prezentacji sztuki na świecie, w tym cyklicznie prezentowanych w Japonii. Projekt jest współtworzony przez architektów z Ukrainy pod przewodnictwem Mykoly Sheremety – szefa oddziału Lwowskiego Narodowego Związku Architektów Ukrainy i Bohdana Goya wykładowcy Politechniki Lwowskiej. Koordynatorem projektu jest Aleksander Baranowski sekretarz Narodowego Związku Architektów Ukrainy w Kijowie.

 

Image
Red Cross Med Center

 

INNOWACJE

Koncepcja RED CROSS MED CENTER zakłada wdrażanie innowacyjnego know-how tworzonego w oparciu o międzynarodową sieć współpracy środowisk akademickich i start-up’ów koordynowaną przez fundację AYA Found. Dzięki temu projekt łączy najnowsze zdobycze nauki, techniki i technologii. Każdy z serii obiektów to swego rodzaju HUB PRZYSZŁOŚCI, kumulacja wielu nowatorskich rozwiązań w duchu Nowego Europejskiego Bauhaus’u. To holistyczny byt odpowiadający na konkretne potrzeby ludności cywilnej Ukrainy ale też przykład nowoczesnej infrastruktury stanowiący wzór budownictwa ekologicznego w duchu zrównoważonego rozwoju i dbałość o przyszłość planety.

RED CROSS MED CENTER to także przemyślana innowacyjna konstrukcja zapewniająca podwyższoną ochronę obiektu w trakcie działań wojennych przewidująca przemianę w komfortowy obiekt na czas pokoju. Innowacyjny charakter modułowej zabudowy stanowi doskonałą alternatywę dla tradycyjnych rozwiązań budowlanych ale też budownictwa modułowego często pozbawionego walorów estetyczne tak ważnych w terapii. W walce z traumą i depresją proponowany zielony ekosystem wnętrza ma dopełniać i aktywnie wspierać proces leczenia.

Wyjątkowa jakość rozwiązań RED CROSS MED CENTER to: podwyższone bezpieczeństwo budynku, bezpieczeństwo związanym z innowacyjną dezynfekcją budynku (sterylne warunki), niespotykanym eko-sytemem architektury na marę XXII wieku. To holistyczny projekt współtworzący optymalne warunki do terapii. To zadanie projektowe potraktowane kompleksowo: od diagnozy po remedium. Zapewnić ma infrastrukturę złożoną z systemowych rozwiązań nowej generacji zapewniających mobilność i szybkość: realizacji, rozbudowy, relokacji. To zarazem dbałość o komfortowe warunki diagnostyki i rehabilitacji,. To innowacyjne rozwiązania z zakresu materiałoznawstwa w architekturze, wyposażeniu wnętrz oraz personalizacja rozwiązań funkcjonalno – przestrzennych pozwalające na implementację rozwiązań zgodnych z oczekiwaniami społeczności lokalnej. Uniwersalny charakter rozwiązań pozwala na możliwość aranżacji przestrzeni adekwatnej do zdefiniowanych na etapie projektu koncepcyjnego funkcji, oferujące komfort i bezpieczeństwo w zróżnicowanych warunkach. Szybki czas realizacji i zgodność z normami prawnymi dopełnia proces.

 

Image
Red Cross

 

PARTYCYPACJA

Projekt RED CROSS MED CENTER skupia inicjatywy środowiska naukowego, akademickiego i biznesu. Działa przy wsparciu wielu instytucji z Polski i zagranicy w tym: Małopolska Okręgowa Izby Architektów Polskich, SARP, środowisko akademickie i naukowe Krakowa oraz fundacje: AYA Found i In Corpore. Powstały z inicjatywy Polski i ukraińskich środowisk twórczych, realizowany jest przez społeczność międzynarodową w tym: naukowców, architektów, projektantów, artystów, inżynierów, informatyków, twórców sztucznej inteligencji w diagnostyce i praktyce medycznej. To wyjątkowe polaczenie różnych kompetencji pozwalające na realizację zadania w sposób innowacyjny. Holistyczny projekt RED CROSS MED CENTER realizowany jest w ramach programów: Kultura Futura e-POLIS i pomocowego dla obywateli Ukrainy – Kultura Futura Świt. Obejmuje działania natury praktycznej korzystając z osiągnięcia nauki z zakresu: medycyny obliczeniowej – łączącej medycynę z informatyką i sztuczną inteligencją, robotyką i innowacyjnymi rozwiązaniami z zakresu architektury.

LOKALIZACJA

Do tej pory zostało wyznaczone pięć lokalizacji uzgodnione z samorządem lokalnym Ukrainy: w Stryju, Brzeżanach i Tarnopolu, Bibrce, Mostyce. To początek procesu wdrożeniowego będącego namacalnym przykładem solidarności i współpracy międzynarodowej.

SKALOWALNOŚĆ

Projekt ma też potencjał w skali globalnej. Skalowalność i adaptatywność składowych projektu do konkretnych potrzeb może być może być wdrażany w zapalnych miejscach świata. To projekt odpowiadający na wyzwania cywilizacyjne, zarazem realizujący cel nadrzędny związany z diagnostyką i terapią: ratowanie ludzkiego życia psychicznego

Zróbmy to razem! Давайте зробимо це разом! Let’s do this together! Zapraszamy!

 

BEZPIECZNY DOM ZDROWIA
BEZPIECZEŃSTWO W WIELU WYMIARACH

Image
Red Cross Med Center

 

PRAWO MIĘDZYNARODOWE

Image
Red Cross Med Center

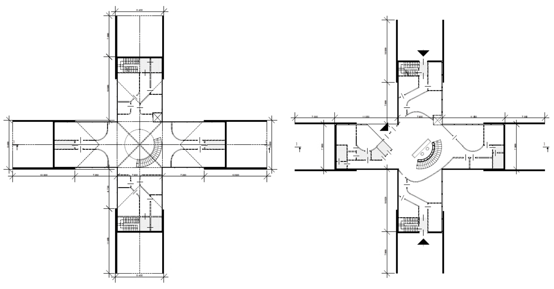
Forma budynku nawiązuje do znaku graficznego Czerwonego Krzyża i chroni obiekt zgodnie z literą Konwencji Genewskiej.

 

BUDYNEK BEZPIECZNY

Image
Red Cross Med Center

Jest obiektem o podwyższonym standardzie bezpieczeństwa.

W razie zagrożenia mobile skrzydła budynku AUTOMATYCZNIE się zamykają chroniąc pacjentów i personel przed ostrzałem i odłamkami

 

SATELITARNA SYGNALIZACJA OCHRONA

Image
Red Cross Med Center

Budynek chroniony przez zintegrowany system satelitarny dedykowany obiektom medycznym.

 

BEZPIECZEŃSTWO EPIDEMIOLOGICZNE

 

Image
Red Cross

 

Bio ActiW – to jedna z wielu innowacyjnych technologii które mają być składowymi budynku. Metoda dezynfekcji przez zamgławianie suchą mgłą pozwala na skuteczną eliminację patogenów w powietrzu. To w budownictwo novum.

 

INNOWACYJNE KNOW – HOW

Jest obiektem niespotykanym, którego aspekt architektoniczny w polaczeniu z innowacjami w budownictwie i kreowaniu przestrzeni wspólnych w duchu Nowego Europejskiego Bauhausu, użycie materiałów z recyklingu, modułowa technologia, nowoczesne podejście do zasobów: wodne „reuse”, energia odnawialna, aktywne uczestnictwo społeczności lokalnej w procesie planowania, w końcu międzynarodowy kontekst i konieczność „dziejowa” – stanowią o jego znaczeniu.

Image
Red Cross

 

SKALOWALNOŚĆ I MULTIPLIKACJA – EKOSYSTEM ZDROWIA

To zarazem oaza – miejsce rehabilitacji, wyciszenia i zdrowia dla ofiar wojny na Ukrainie ale też obiekt mogący być implementowany w miejsca zapalne na całym świecie.

Image
Red Cross

 

IDEA JEDNOŚCI

 

M-30 / Droga Jednosci Ukrainy / Droga Jedności Międzynarodowej.

Międzynarodowa droga M30 / ukr. Автошлях М 30 / – droga o znaczeniu międzynarodowym na Ukrainie, powstała 28 kwietnia 2021 roku w wyniku połączenia istniejących wcześniej magistrali M04 i M12. Ze swoją długością ponad 1400 kilometrów stanowi najdłuższą arterię w Ukrainie. Trasę utworzono w ramach obchodów 30-lecia niepodległości Ukrainy. Znana jest także jako Droga Jedności / ukr. Дорога єдності/. W ramach kampanii na rzecz realizacji projektu: RED CROSS MED CENTER, władze samorządowe już trzech miast Ukrainy, podjęły decyzje o przekazaniu działek pod tą inwestycję. To Stryj, Brzeżany i Tarnopol gdzie ma być realizowany projekt RED CROSS MED CENTER. Tym samym międzynarodowa droga M30 ma się stać Droga Jedności Międzynarodowej we wspieraniu narodu Ukraińskiego w walce o wolność i pokój. Także w ujęciu metaforycznym: Droga Jedności w kontekście RED CROSS MED CENTER stać się ma nie tylko symbolem zjednoczonej Ukrainy ale i zjednoczonej Europy i wolnego świata, w dążeniu do uzdrowienia sytuacji geopolitycznej – końca wojny na Ukrainie.

Image
Red Cross

 

ETAP I

DIAGNOZA – KONCEPCJA RED CROSS MED CENTER 4 DESIGN DAYS / KATOWICE / Polska 2023 – ZREALIZOWANY

ETAP II

SZKICE KONCEPCYJNE – OPRACOWANIE FUNKCJONALNOŚCI WIZYTY STUDIALNE NA UKRAINIE: LWÓW, ŚWIRZ, STRYJ, BRZEŻANY, TARNOPOL SPOTKANIA Z WŁADZAMI SAMORZADOWYMI – W REALIZACJI

Image
Red Cross

 

PROJEKT JEST SKALOWALNY – WIELKOŚĆ OBIEKTÓW ZALEŻY OD KONKRETNYCH FUNKCJI KTÓRE DEFINIUJĄ WŁADZE SAMORZĄDOWE ETAP TEN JEST W TRAKCIE REALIZACJI WE WSPÓŁPRACY Z ARCHITEKTAMI UKRAINY I WŁADZAMI LOKALNYMI NA TERENIE UKRAINY planowane zakończenie procesu: 31.03.2024

ETAP III

PROMOCJA PROJEKTU RED CROSS MED CENTER - W REALIZACJI

 

ZOBACZ KALENDARIUM
 

ETAP IV

WYBÓR PARTNERA STRATEGICZNEGO PROJEKTU RED CROSS MED CENTER OPRACOWANIE RAM PRAWNYCH I MODELU INWESTYCYJNEGO OPRACOWANIE WYTYCZNYCH PROJEKTOWYCHSTWORZENIE KOSZTORYSU INWESTORSKIEGO – W REALIZACJI

ETAP V

PRACE PROJEKTOWE RED CROSS MED CENTER OPRACOWANIE WYTYCZNYCH TECHNOLOGICZNYCH UMOWY Z PARTNERAMI STRATEGICZNYMI.

Pozyskanie dokumentacji potrzebnej do projektowania i uzyskania pozwolenia na budowę na terenie Ukrainy miejscowy plan zagospodarowania przestrzennego, decyzja o warunkach zabudowy, mapy geodezyjne, dokumentacja geotechniczna gruntu, warunki techniczne dostaw mediów; PROJEKT KONCEPCYJNY – W REALIZACJI

ETAP VI

DOBÓR PARTNERÓW – KNOW-HOW/ IN CORPORE, AGH, UJ, UR, ASP, SANO, BIOACTIW BIOMIMETYKA /INTERDYSCYPLINARNE PRACE PROJEKTOWE – W REALIZACJI

ETAP VII

PRACE PROJEKTOWE RED CROSS MED CENTERPROJEKT BUDOWLANY

ETAP VIII

PRACE PROJEKTOWE RED CROSS MED CENTER – uzyskanie pozwolenia na budowę i ewentualnie innych poprzedzających to pozwolenie decyzji, zgód I uzgodnień; PROJEKT WYKONAWCZY

ETAP VIII

PRZETARG NA GŁÓWNEGO WYKONAWCĘ

ETAP IX

UZBRAJANIE TERENU, PRACE BUDOWLANEW, MONTAŻOWE

ETAP X

ODDANIE DO UŻYTKOWANIA. 

Image
Red Cross

 

AYA Found / program: Kultura Futura Świt / program e-POLIS

Projekt RED CROSS MED. CENTER realizowany jest w ramach działalności statutowej fundacja AYA Found realizującej programy:

  • Kultura Futura którego zwieńczeniem jest Międzynarodowe Biennale Sztuki i Technologii Przyszłości e-POLIS / Kraków 2023
  • Kultura Futura Świt dedykowany pomocy dla obywateli Ukrainy na terenie Polski i Ukrainy

KONTAKT UA

Aleksander Baranowski
NSAU, koordynator projektów
+380 67 329 1167
alex.baranowski@ukr.net

KONTAKT PL

Aleksander Janicki
Prezes AYA Found
Członek Komisji Ekspertów Narodowego Stowarzyszenia Architektów Ukrainy ds. odbudowy i współpracy międzynarodowej.
+48 793397963
alekjanicki@gmail.com
swit.kulturafutura.eu
aptekagallery.com
kulturafutura.pl
alekjanicki.eu
performspace.eu
hiq.com.pl

Image
Red Cross

 

Pawilon Polski na Expo 2005 w Aichi w Japonii we współpracy z K. Ingardenem i biurem Ingarden&Ewy Architekci

2004

Nagroda w ogólnopolskim konkursie na opracowanie koncepcji architektonicznej Pawilonu Polskiego na Expo 2005 w Aichi, Japonia;

2005

Nagroda Specjalna Prezydenta Miasta Krakowa w konkursie SARP Kraków „Projekt Roku 2004 – Realizacja Roku 2004” w kategorii w kategorii Projekt Roku 2004 za projekt Pawilonu Polski Expo 2005, Aichi, Japonia, I nagroda w konkursie SARP Projekt Roku 2004 dla Pawilon Polski Expo 2005, Aichi, Japonia, SARP Kraków

2006

Honorowe wyróżnienie w konkursie Orły REFE / 2005 dla inwestycji Polski Pawilon Expo 2005, Aichi, Japonia, Medal SARP „Za wybitne dzieło architektoniczne zrealizowane w roku 2005” dla obiektu Pawilon Polski Expo 2005, Aichi, Japonia; Nagroda I stopnia Ministra Budownictwa „Za wybitne osiągnięcia twórcze w dziedzinie Architektury i Budownictwa” za zrealizowany projekt Pawilonu Polskiego na światowej wystawie Expo 2005, Aichi, Japonia; Nagroda Roku SARP 2005 dla obiektu Polski Pawilon na światową wystawę Expo 2005, Aichi, Japonia /

2007

I nagroda w Konkursie o Nagrodę im. Macieja Nowickiego za innowacyjne rozwiązania w architekturze polskiej – Edycja I – „Architektura koloru” dla Pawilonu Polski na wystawie Expo 2005, Aichi, Japonia; I nagroda w międzynarodowym konkursie ContractWorld 2007 (Hanower, Niemcy) dla projektu Pawilonu Polski Expo 2005, Aichi, Japonia w kategorii „Przestrzenie ekspozycyjne”. Centrum Zaawansowanych Technologii Multimedialnych – MULTI LAB Małopolski Park Technologii Informacyjnych Ośrodek Innowacyjności Krakowskiego Parku Technologicznego 2014I nagroda za kompleksowy projekt studia i przestrzeni ekspozycyjnej nowej generacji łączącej high-tech z low-tech.

Image
Red Cross

 

Pawilon Józefa Czapskiego, oddział Muzeum Narodowego w Krakowie

2016

Pawilon Józefa Czapskiego, najnowszy budynek Muzeum Narodowego w Krakowie, otrzymał wyróżnienie Konkursie na Wydarzenie Muzealne Roku 2016 „Sybilla”, organizowanym przez Narodowy Instytut Muzealnictwa i Ochrony Zbiorów w kategorii „Inwestycje”.

Trzecia Nagrodę w kategorii Architektura Użyteczności Publicznej konkursu o Nagrodę Województwa Małopolskiego im. Stanisława Witkiewicza za najlepsze, współczesne realizacje architektoniczne sprzyjające ochronie i kształtowaniu krajobrazu kulturowego Małopolski.

Opera Leśna 6D – Nowy Wymiar. Sopot

2016

I miejsce w konkursie na projekt koncepcyjny muzeum miejsca w przestrzeni Opery Leśnej w Sopocie.

Zamek Królewski na Wawelu – Centrum Multimedialne. Kraków

2019

I miejsce w konkursie na projekt koncepcyjny i wykonawczy wraz z realizacją Centrum MulƟmedialnego na Wawelu

Dom Mikołaja Kopernika w Toruniu

2022

EMYA – European Museum of the Year Award – Specjalne Wyróżnienie dla Domu Kopernika w Toruniu.

EMYA – European Museum of the Year Award
To najważniejsza europejska nagroda muzealna, przyznawana od 1977 r. przez Europejskie Forum Muzeów. EMYA. Prestiżowe wyróżnienie dla muzeów europejskich, której celem jest nagrodzenie najcenniejszych wydarzeń w europejskim sektorze muzealnym. Nagroda przyznawana jest od 1977 roku przez European Museum Forum (EMF) – niezależną organizacja pozarządową, której misją jest promowanie innowacji w muzealnictwie i zachęcanie do wymiany doświadczeń i dobrych praktyk między muzeami w całej Europie. EMF działa pod auspicjami Rady Europy.

Image
Red Cross

 

Teatr KTO w Krakowie
we współpracy z M. Twardowski Architektura

2022

Tytuł Modernizacja Roku 2021 w kategorii Pamięć miejsc historycznych w konkursie Modernizacja Roku & Budowa XXI w. w Polsce;

II miejsce w kategorii Architektura użyteczności publicznej w 11. edycji konkursu o Nagrodę im. Stanisława Witkiewicza za najlepsze realizacje architektoniczne sprzyjające ochronie i kształtowaniu krajobrazu kulturowego Małopolski.;

Nominacja w XXVI edycji konkursu „Polski Cement w Architekturze” na najlepszą realizację architektoniczną z użyciem technologii żelbetowej wykonaną i przekazaną do użytku do końca 2021 r. przyznana przez STOWARZYSZENIE ARCHITEKTÓW POLSKICH.

2024

I miejsce w Plebiscycie Salon Architektury 2024.

 

Aleksander Janicki
Prezes AYA Found / Kultura Futura Świt

Art. Aleksander Janicki – polski artysta intermedialny, projektant, autor innowacyjnych projektów w dziedzinie architektury, architektury krajobrazu i wnętrz, performer, grafik, fotograf, rzeźbiarz scenograf, twórca wideo i instalacji semi- i interaktywnych, w tym struktur multi-sensorycznych, site-specific i w przestrzeni publicznej. Kurator, autor projektów z dziedziny multimediów, projektowania graficznego, ekspozycji wystawienniczych opartych o nowe technologie (AR, VR, AI, holografia, immersja). Laureat licznych nagród w Polsce i za granicą m. in. za interdyscyplinarną twórczość łączącą nowe technologie i architekturę w tym, między innymi:

Nagroda I stopnia Ministra Budownictwa „Za wybitne osiągnięcia twórcze w dziedzinie Architektury i Budownictwa” za zrealizowany projekt Pawilonu Polskiego na światowej wystawie Expo 2005, Aichi, Japonia (z pracownią Ingarden&Evy Architekci), Nagroda Roku SARP 2005, Nagroda Specjalna Prezydenta Miasta Krakowa w konkursie SARP Kraków „Projekt Roku 2004 – Realizacja Roku 2004”, I nagroda w konkursie SARP Projekt Roku 2004, Honorowe wyróżnienie w konkursie Orły REFE 2005 dla inwestycji Polski Pawilon Expo 2005, I nagroda w międzynarodowym konkursie ContractWorld 2007 (Hanower, Niemcy) w kategorii „Przestrzenie ekspozycyjne”, Wydarzenie Muzealne Roku 2016 „Sybilla” dla Pawilonu J. Czapskiego o. Muzeum Narodowego w Krakowie (wystawa stała), Wydarzenie Muzealne Roku Sybilla 2016 oraz wyróżnienie specjalne EMYA European Museum of the Year Award 2022 za multimedialne Muzeum Kopernika w Toruniu, nagrodzony w ogólnopolskim konkursie za unikalną realizację w zbytkowej tkance miasta, uhonorowany tytułem Modernizacja Roku & Budowa XXI wieku 2022 za budynek Teatru KTO w Krakowie.

Autor innowacyjnych koncepcji w duchu NEB: Wesoła Hub, Red Cross Med Center, HHous i Aqua Haus. Reżyser akcji w przestrzeni publicznej i o charakterze hybrydowym, w tym parateatralnych i opartych na technologii projekcji wielkoformatowych, mappingu i wielokanałowego dźwięku strefowego.

Założyciel Formacji HiQ i Big Data Collective. Prezes Fundacji AYA Found, twórca: Forum Kultura Futura, Międzynarodowego Biennale Kultura Futura e-POLIS i Creative Industry Platform. Właściciel Galerii i! , Apteka Janicki Gallery, PerForm. Wieloletni wykładowca na ASP w Krakowie. Jego prace znajdują się w zbiorach w Europie, Azji, Ameryce Północnej. Regularnie wystawia w Japonii. Od 2022 AYA FOUND wspiera ludność uchodźczą, zajmuje się edukacją i promocją kultury Ukrainy. Wystawia w Ukrainie (2023-24) wspierając międzynarodowe centrum współpracy w Zamku Swirz we współpracy z Narodowym Stowarzyszaniem Architektów Ukrainy. Realizuje autorski projekt, we współpracy z architektami z Ukrainy, RED CROSS MED CENTER – sieci punktów diagnostycznych i terapeutycznych na terenie Ukrainy.

 

 

W celu promowania idei RED CROSS MED CENTER pracuje Komisja Ekspertów Narodowego Związku Architektów ds. Odbudowy, Fundacja Izby Architektów NSAU, Stowarzyszenie Architektów Polskich, Izba Architektów RP. NSAU aktywnie uczestniczy tworzeniu ukraińskiego kodeksu budowlanego / seminariach firm partnerskich w Kijowie i innych miastach kraju.

Przygotowywana jest też kampania informacyjno-promocyjna RED CROSS MED CENTER w Polsce i za granicą w tym w szczególności w Stanach Zjednoczonych, krajach UE we współpracy z Komisją Europejską oraz w Japonii we współpracy z Port of Humanity Tsuruga Museum.

Zapraszamy do współpracy.

 

 

 

W ramach propagowania idei RED CROSS MED CENTER pracuje:

 

  • Komisja Ekspertów Narodowego Stowarzyszenia Architektów ds. odbudowy,
  • Fundacja Izby Architektów NSAU,
  • Stowarzyszenia Architektów Polskich,
  • Izba Architektów RP.

 

Przygotowywana jest też kampania informacyjno-promocyjna RED CROSS MED CENTER w Polsce i za granicą m. in. w USA, krajach UE we współpracy z Komisją Europejską oraz na terenie Japonii we współpracy z PORT OF HUMANITY TSURUGA

 

 

Ambasadorowie

 

Image
prof. Andrzej Jajszczyk

prof. Andrzej Jajszczyk
AGH University of Science and Technology

Polski naukowiec, profesor nauk technicznych, specjalizujący się w sieciach i węzłach telekomunikacyjnych, członek rzeczywisty Polskiej Akademii Nauk, dyrektor Narodowego Centrum Nauki w latach 2011–2015, wiceprzewodniczący Europejskiej Rady ds. Badań Naukowych.

Image
prof. Bogdan De Barbaro

prof. Bogdan De Barbaro
profesor nauk medycznych

Polski lekarz psychiatra i terapeuta, profesor nauk medycznych, profesor zwyczajny Uniwersytetu Jagiellońskiego. Członek Polskiej Akademii Umiejętności, Międzywydziałowej Komisji Interdyscyplinarnej; Komisji Etyki w Nauce. Członek zarządu Polskiego Towarzystwa Psychiatrycznego

Image
prof. Akiko Kasuya

prof. Akiko Kasuya
Kyoto City University of Art

Kurator w Narodowym Muzeum Sztuki w Osace (Japonia), w latach 1991 – 2008. Profesor na najstarszej uczelni artystycznej w Japonii – Kyoto City University of Art. Do szczególnych osiągnięć należy promocja polskiej sztuki w Japonii. Od lat współpracuje z art. Aleksandrem Janickim m. in. będąc kuratorką i organizatorką wystaw na tertenie Japonii.

Image
Jan Tombiński

Jan Tombiński
dyplomata, ambasador Unii Europejskiej na Ukrainie (2012–2016)

Polski historyk i dyplomata, w latach 1996–1998 ambasador Rzeczypospolitej Polskiej w Słowenii, w latach 2001–2006 we Francji, w latach 2007–2012 stały przedstawiciel RP przy Unii Europejskiej, następnie ambasador Unii Europejskiej na Ukrainie (2012–2016) i przy Stolicy Apostolskiej (2016–2020).

Image
dr hab. inż. Sylwester Tabor

dr hab. inż. Sylwester Tabor
prof. URK (360)Rektor Uniwersytetu Rolniczego im. Hugona Kołłątaja w Krakowie

Polski naukowiec, specjalista z zakresu zarządzania, mechanizacji, informatyzacji oraz optymalizacji procesów produkcji rolniczej, członek Polskiego Towarzystwa Inżynierii Rolniczej, a także Rady naukowej ds. Strategicznych Kierunków Rozwoju Małopolski.

Image
prof. Jerzy Niewodniczański

prof. Jerzy Niewodniczański
Fizyk i geofizyk

Pracownik i profesor Instytutu Fizyki i Techniki Jądrowej AGH. Dziekan Wydziału Fizyki i Techniki Jądrowej AGH (1990–1993), prorektor AGH (1985–1987), prezes Państwowej Agencji Atomistyki (1992–2009)

Image
Robert Makłowicz

Robert Makłowicz
dziennikarz, pisarz, publicysta

Absolwent Uniwersytetu Jagiellońskiego, zyskał popularność jako felietonista „Gazety Wyborczej”. Prowadził liczne programy kulinarne w TVP, a także był autorem książek, zdobywając Nagrodę Literacką Srebrny Kałamarz. W 2020 roku uruchomił kanał na YouTube.

Image
Ziyad Raoof

Ziyad Raoof
Dyplomata, Pełnomocnik Rządu Regionalnego Kurdystanu w Polsce.

Współzałożyciel Kurdyjskiego Centrum Informacji i Dokumentacji. Członek Rady Muzeum Historycznego Miasta Krakowa. Laureat medalu Prezydenta Krakowa „Honoris Gratia”.

Partycypanci

Image
Mykola Sheremeta

Mykola Sheremeta
Architect, Chairman of the Board Lviv Regional organization of the National Union of Architects of Ukraine

Director at „Universal Proekt,” a company specializing in design and construction. Active participant in public debates, investment projects, and international collaborations. Serves as the head of the National Union of Ukrainian Architects.

Image
Bohdan Goy

Bohdan Goy
Architect, Associate Professor of Architectural Environment Design Department of Lviv Polytechnic National University

Chief architect of the Memorial to the Heroes of the Nebesna Sotnia in Lviv. Designed IT office of Global Logic and Technology for Business in Lviv. Involved in the design of the Fujikura Plant in Pidryasne village, Lviv region.

Image
Oleksander Baranowski

Oleksander Baranowski
Project coordinator of the National Association of Architects of Ukraine

Worked as an architect in KiewZNDIEP. From 1988 to 1991 worked at FSP Arcus in Warsaw and later in Kiev. Warsaw and then in Kiev. In 2000-2005 he was the director of the Trade Fair Office in Kiev. Office in Kiev. He then worked as editor of the Murator Ukraina magazine and as an architect.

Image
Anhelina Yefymenko

Anhelina Yefymenko

Director of the Architecture, Design and Urbanism Center "GUNPOWDER TOWER" of the Lviv Union of Architects of Ukraine, architect at «A7 Architects» bureau, curator of cultural&art and exhibition projects, co-organizer of the International Festival of Architecture and Arts "VEZHA". The main type of activity: conceptual projects of cultural, public and residential spaces, design of exhibition projects, management of cultural and artistic projects that popularize architecture, design, urbanism and art.

Image
Oksana Karachun

Oksana Karachun

Psychology practitioner working with refugees and people with psychological trauma Crisis psychologist. Perinatal psychologist. Psychosomatologist. Trainer of the International Association of Psychosomatics and Body Therapy. Member of the World Association for Positive and Transcultural Psychotherapy (WAPP). Member of the Eastern Ukrainian Association of ART-Therapists. Certified specialist in the method of cognitive imagery therapy. International supervisor. Author of MAK, textbooks and books.

Diana Oganesyan (melancholydi)

Wsparcie

Image
UNIHUT logo

UNIHUT S.A. manufactures steel structures and technological equipping, provides investment, overhaul and modernisation services in mechanical engineering, power engineering and ceramics.

UNIHUT S.A. holds ratings and certificates necessary to execute orders assigned by: Office of Technical Inspection, Transport Technical Supervision, LL-C, Road and Bridge Research Institute. To ensure the high quality of the services provided, an Integrated Management System has been implemented in accordance with ISO 9001:2015, ISO 14001:2015, PN-N 45001:2018

Pliki